Diseño arquitectónico estructurado para ejecución precisa
Desarrollamos proyectos arquitectónicos bajo un enfoque estructurado que integra viabilidad normativa, modelado BIM y coordinación interdisciplinaria, garantizando coherencia entre diseño y ejecución.
Metodología técnica orientada a ejecución
Análisis normativo y viabilidad
Evaluación urbanística y restricciones técnicas
Diagnóstico del contexto y programa arquitectónico
Definición estratégica del concepto ejecutable
Desarrollo arquitectónico coordinado
Anteproyecto estructurado y definición espacial
Modelado BIM 3D para validación técnica
Ajustes funcionales orientados a viabilidad constructiva
Desarrollo técnico para ejecución
Documentación arquitectónica y técnica detallada
Coordinación interdisciplinaria (estructuras, MEP, etc.)
Optimización para control presupuestal y ejecución en obra
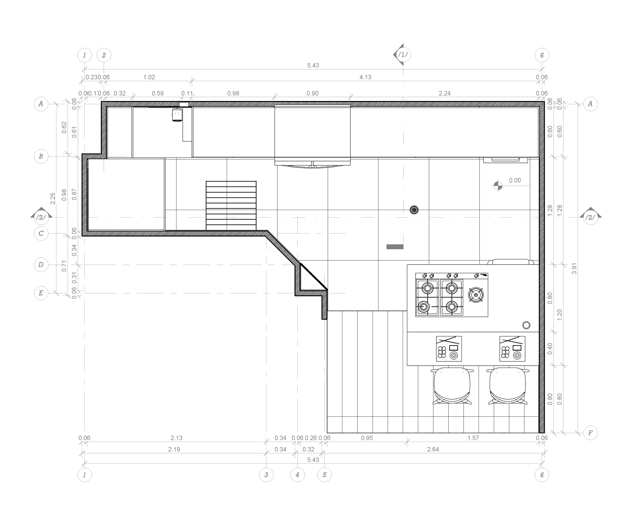
Los modelos y visualizaciones arquitectónicas forman parte del proceso de validación técnica, permitiendo anticipar decisiones constructivas, optimizar soluciones espaciales y reducir riesgos en ejecución.
Nuestros diseños no son solo visuales. Cada propuesta se desarrolla con documentación arquitectónica y técnica completa, lista para coordinación y ejecución en obra.
Iniciemos la estructuración técnica de tu proyecto
Compártenos la información preliminar y realizaremos una evaluación arquitectónica, normativa y técnica para estructurar una propuesta clara, viable y alineada con los objetivos del proyecto.

